![]()
![]()
![]()
【名古屋市南区白雲町】 (26.01.17up)




















笠寺一里塚の前の和菓子屋
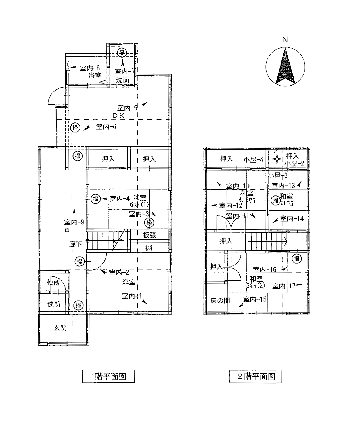
「笠寺一里塚」は、名古屋市内に唯一残る旧東海道の一里塚。今回ご紹介するのはその真ん前にある元和菓子屋さんの店舗とご自宅です。1階奥には、いまも広い厨房があり、小豆を炊く大釜や蒸し器なども残っています。
訪れたのは、初冬のきれいに晴れた日。青空に一里塚の緑が美しく映えていました。このランドマークになる場所に、おいしいパン屋さんやケーキ屋さんがあったなら。そこが障碍者やお年寄りの方々が働けるお店だったり、イートインスペースもあったり、まちの人たちが集まる場になったら楽しそう。
あるいは、使うには改修あるいは改装が必要ですが、その改修自体を楽しめる人たちが入ったなら。たとえば、知り合いにフリースクールの主宰者がいるのですが、子どもたちが自分たちでこの場所で何をしたいのかを考え、絵を描き、少しずつ自分たちも参加しながら「場」を整えていく。そうすれば、そのこと自体が大きな学びになることでしょう。
などなど、妄想が膨らみます。広い2階建ての店舗の横には、土間のあるこぢんまりした元ご自宅(創業当初はこちらで商売をされていたとのこと)と オーナーの叔父上の家。さらに敷地内には同じ大家さんが管理するワンルームマンションもあり、こちらも空き部屋があります。事務所や趣味の部屋などに使うにはちょうどいいサイズかもしれません。
街道の風情が残るこの場所を生かしてくださる方を、広く募集します。
DATA
| 住所 | 名古屋市南区白雲町 |
|---|---|
| 交通 | 名鉄名古屋本線「本笠寺」まで徒歩11分、名古屋市バス停「赤坪町」まで徒歩3分 |
| 概要 | ⚫︎店舗:重量鉄骨造2階建 築32年、土地面積 293.64㎡、床面積 214.27㎡ ⚫︎家1:木造平屋建 築48年、土地面積(店舗と同じ)㎡、床面積 62.11㎡ ⚫︎家2:木造2階建 築62年、土地面積148.76㎡、床面積 98.13㎡ ⚫︎「びぃはうす壱番館」1993年築、部屋の広さ18㎡ *外断熱・二重窓に改修済 |
| 費用 | 賃料: ⚫︎店舗・家1・家2/応相談 ⚫︎「びぃはうす壱番館」 1993年築、部屋の広さ18㎡、全4室(空き2室)*外断熱・二重窓・省エネエアコン・外壁・玄関ドア取替等、2023年にフル改修済 37,000円/月 管理費5,000円、保証金74,000円 *保証会社に払う費用が必要です *店舗または自宅と合わせて借りる場合、家賃は応相談 駐車場:敷地内10,000円 その他:敷地内のレンタル自転車が利用可、ドラッグスギヤマ笠寺店まで142m、スーパーヤマダイ 笠寺店まで373m、 ファミリーマート粕畠三丁目店まで380m |


